

代表
遠藤 淳史 様
完璧なお仕事ありがとうございました!
フロアマップは早速HPやインスタで使わせていただいております!
またデザイン頼むと思いますので、その際はよろしくお願いいたします。
- クライアントからの依頼内容
-
- HP上に掲載するフロアマップの作成
- 平面図から、高級感があり見やすいフロアマップの作成
- フロアマップにロゴも入れてほしい
- なるべく早くが希望。 遅くても5日後中には欲しい
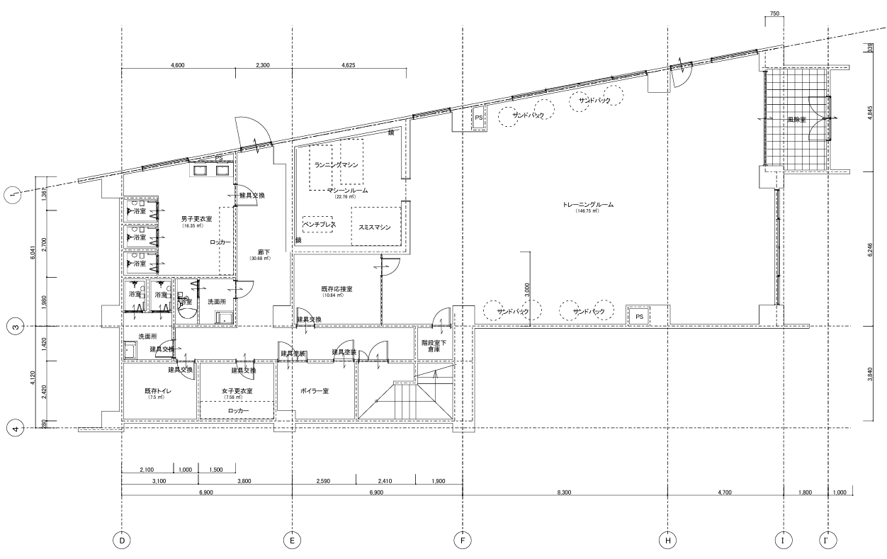
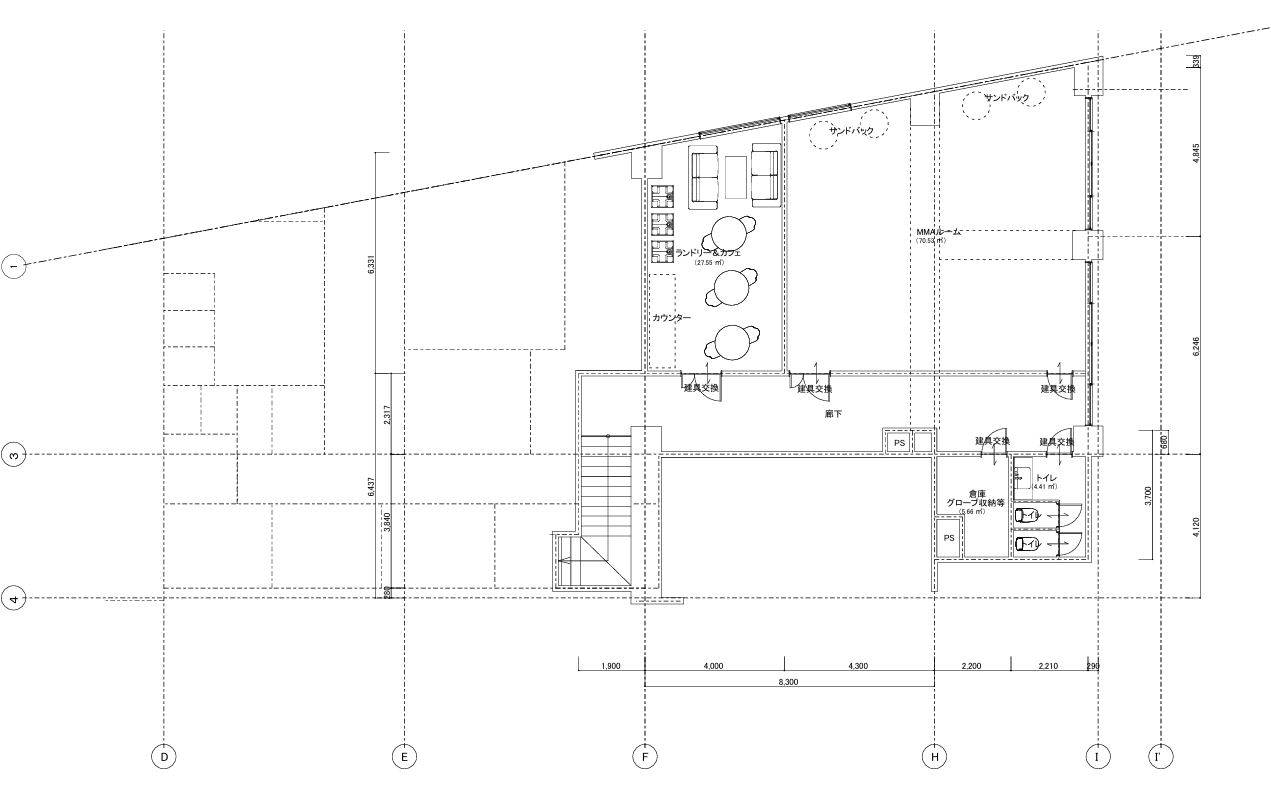
平面図


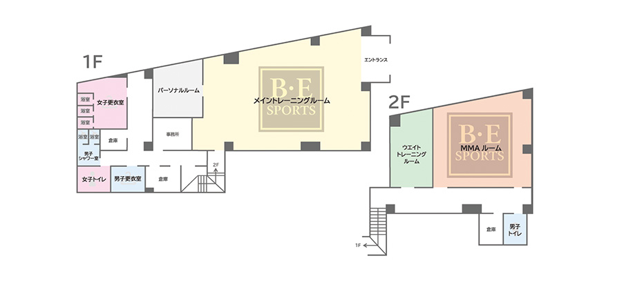
提案デザイン
高級感があるフロアマップをご希望でしたので、シンプルに余白を多く確保してデザインいたしました。 HP、お店の雰囲気(Instagram)をリサーチした結果、グレー、ブラック、イエローを基調とされていたのでフロアマップの世界観を合わせました。 白ベースと黒ベースの2パターンを作成し、遠藤様にご確認いただきました。




提案デザインからの修正
- 白ベースを希望だが、少しシンプルすぎるので各部屋に配色を入れて欲しい
- サンドバックやマシン各種は削除
修正案 (納品)


制作時にこだわったPOINT
5/12にオープン、4/17からは内覧会というスケジュールなのをInstagramで知り、1分でも早く!遠藤様の求めているフロアマップを制作したい!と思い制作させていただきました。
4/16のお昼にご依頼いただき、夕方に初稿をご共有、夜までに修正案を共有させていただきました。4/17の朝、遠藤様から「完璧です!」とご連絡を頂けてとても幸せでした!
幸せな案件に携われたこと、遠藤様とのご縁に感謝の気持ちでいっぱいだったこと、実際に店舗に行きたかったので、4/17に内覧会にお邪魔しました。内覧会担当の勝岡様にジムの中を案内いただきながら、頭の中で作成したフロアマップを思い描きその空間にいられたことが幸せでした!
図面上で向き合っていた世界が、目の前で鮮やかな空間として形になっている様子を拝見し、改めてこのプロジェクトに携われた喜びを実感する一日となりました。
B.E SPORTSの皆様、この度は大切な拠点のデザインをお任せいただき、誠にありがとうございました。

